









COMFORT "L" HAUS
PATOGAUS "L" FORMOS NAMO ARCHITEKTŪRINIS PROJEKTAS
Metai: 2023 Vizualizacijos Plotas: 152,24 kv.m.
APRAŠYMAS
Patogus vieno aukšto, "L" formos gyvenamojo namo projektas. Pagrindiniai šio projekto pliusai - gyvenamosios erdvės orientuotos į jaukią terasą su stogu bei dideli, vitrininiai langai suteikiantys svetainės erdvei daug šviesos ir sujungiantys pačią svarbiausią namų erdvę su pusiau uždaru kiemu. Tūrinė pastato "L" forma atitveria sklypą nuo gatvės pusės ir padeda sukurti privatumą sklype.
PROJEKTO INFORMACIJA
Paskirtis: Gyvenamosios paskirties (vieno buto) pastatas
Vieta: -
Bendas plotas: 152,24 kv.m.
Aukštų skaičius: 1
Kambarių skaičius: 3 miegamieji
Projekto tipas: Individualus
Projektas parengtas: 2023m
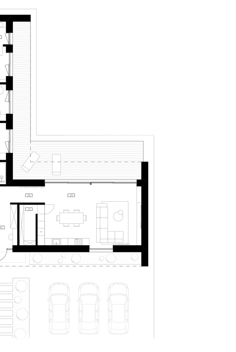
PIRMO AUKŠTO PLANAS
PIRMO AUKŠTO EKSPLIKACIJA
1. Holas 8,92 kv.m.
2. Koridorius 24,09 kv.m.
3. Svetainė/virtuvė 45,26 kv.m.
4. Vonia 6,56 kv.m.
5. Kambarys 11,37 kv.m.
6. Kambarys 11,20 kv.m.
7. Miegamasis 15,25 kv. m.
8. Drabužinė 4,34 kv.m.
9. Vonia 5,12 kv.m.
10. Drabužinė 6,46 kv.m.
11. Techninė patalpa 8,84 kv.m.
12. Sandėliukas 4,83 kv.m.
VISO 152,24 kv.m.
BENDRAS PLOTAS 152,24 kv.m.





FASADO APDAILOS SPRENDIMAS NR. 2
Fasado apdaila gali būti keičiama pagal poreikius
