












GEGUŽINĖS HAUS
GEGUŽINĖS NAMO ARCHITEKTŪRINIS PROJEKTAS
Metai: 2021 Foto: Mona Avik Plotas: 176,72kv.m.
APRAŠYMAS
Išskirtinis vienbučio gyvenamojo namo projektas keturių asmenų šeimai. Pastatas sudarytas iš dviejų tūrių - trikampio formos pirmo aukšto tūrio ir mažesnio, kabančio, monumentalaus antro aukšto tūrio. Pastato šiaurinis fasadas įkastas į žemę. Pastatas orientuotos į pietinę pusę. Toks išskirtinis pastato užstatymas suprojektuotas dėl ribotų sklypo užstatymo galimybių bei didelio reljefo perkritimo.
Pastato pirmajame aukšte suplanuota svetainės, virtuvės erdvė su 4 metrų aukščio lubomis, pagrindinis miegamasis su drabužine, darbo kambarys, vonia, katilinė. Antrajame aukšte - du vaikų kambariai su jiems skirta vonia ir drabužine.




PROJEKTO INFORMACIJA
Paskirtis: Gyvenamosios paskirties (vieno buto) pastatas
Vieta: Vilniaus r.
Bendas plotas: 176,72kv.m.
Aukštų skaičius: 2
Kambarių skaičius: 3 miegamieji + darbo, svečių kambarys
Projekto tipas: Individualus
Projektas parengtas: 2016m
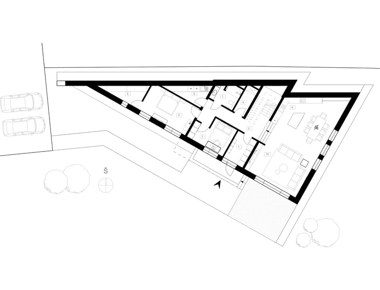
PIRMO AUKŠTO PLANAS
PIRMO AUKŠTO EKSPLIKACIJA
1. Tambūras 6,79 kv.m.
2. Holas 13,47 kv.m.
3. Darbo kambarys 10,83 kv.m.
4. Miegamasis 16,80 kv.m.
5. Drabužinė 6,33 kv.m.
6. Skalbykla 5,96 kv. m.
7. San. mazgas 5,78 kv.m.
8. Katilinė 3,99 kv.m.
9. Virtuvė/Valgomasis 29,76 kv.m.
10. Svetainė 29,68 kv.m.
VISO 129,39 kv.m.
BENDRAS PLOTAS 176,11 kv.m.
ANTRO AUKŠTO PLANAS
ANTRO AUKŠTO EKSPLIKACIJA
1. Koridorius 8,68 kv.m.
2. Vaiko kambarys 01 13,33 kv.m.
3. Vaiko kambarys 02 13,34 kv.m.
4. San. mazgas 5,28 kv.m.
5. Pagalbinė patalpa 6,09 kv.m.
VISO 46,72 kv.m.
BENDRAS PLOTAS 176,11 kv.m.
