









SMALL HAUS
MAŽO NAMO ARCHITEKTŪRINIS PROJEKTAS
Metai: 2023 Vizualizacijos Plotas: 83,64 kv.m.
APRAŠYMAS
Kompaktiškas, vieno aukšto gyvenamojo namo projektas, puikiai tinkantis mažesniems sklypams. Name suplanuota erdvi gyvenamoji, svetainės, virtuvės valgomojo zona bei du mažesni miegamieji kambariai. Iš pagrindinio miegamojo taip pat numatytas patekimas į privačią drabužinę. Atviroje bendroje erdvėje, be jaukios svetainės zonos, suplanuotas ir valgomojo stalas bei erdvi sala virtuvėje. Tačiau, esant poreikiui, pastato išplanavimas gali būti koreguojamas ir pamažinus bendrą erdvę suplanuojamas papildomas darbo ar vaikų kambarys.
PROJEKTO INFORMACIJA
Paskirtis: Gyvenamosios paskirties (vieno buto) pastatas
Vieta: -
Bendas plotas: 83,64 kv.m.
Aukštų skaičius: 1
Kambarių skaičius: 2 miegamieji
Projekto tipas: Individualus
Projektas parengtas: 2023m
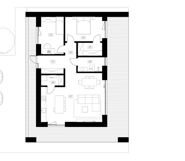
PIRMO AUKŠTO PLANAS


PIRMO AUKŠTO EKSPLIKACIJA
1. Holas 6,06 kv.m.
2. Koridorius 4,49 kv.m.
3. Kambarys 11,67 kv.m.
4. Miegamasis 12,52 kv. m.
5. Drabužinė 4,20 kv.m.
6. Vonia 4,93 kv.m.
7. Svetainė/virtuvė 36,63 kv.m.
11. Techninė patalpa 3,12 kv.m.
VISO 83,64 kv.m.
BENDRAS PLOTAS 83,64 kv.m.



FASADO APDAILOS SPRENDIMAS NR. 2
Fasado apdaila gali būti keičiama pagal poreikius
