






APRAŠYMAS
Tai vieno aukšto, gyvenamojo namo projektas, suplanuotas 18 sklypų kvartalui.
Pastatas sudarytas iš dviejų tūrių – žemesniojo, gyvenamųjų kambarių tūrio su sutapdintu stogu, ir aukštesniojo, poilsio zonos, svetainės ir virtuvės tūrio su dvišlaičiu stogu. Šis architektūrinis sprendimas pastatui ir gyvenamųjų namų kvartalui suteikia žaismingumo ir darnos, o namų gyventojams didesnį erdvės pojūtį namuose, kurį dar labiau kuria dideli langai ir po stogų ištraukimais suprojektuotos erdvios terasos, vasaros laikotarpiu tampančios gyvenamųjų erdvių pratęsimu.
PROJEKTO INFORMACIJA
Paskirtis: Gyvenamosios paskirties (vieno buto) pastatas
Vieta: Vilniaus r.
Bendas plotas: 144,11 kv.m.
Aukštų skaičius: 1
Kambarių skaičius: 3 miegamieji + darbo, svečių kambarys
Projekto tipas: Individualus (kvartalui)
Projektas parengtas: 2022m
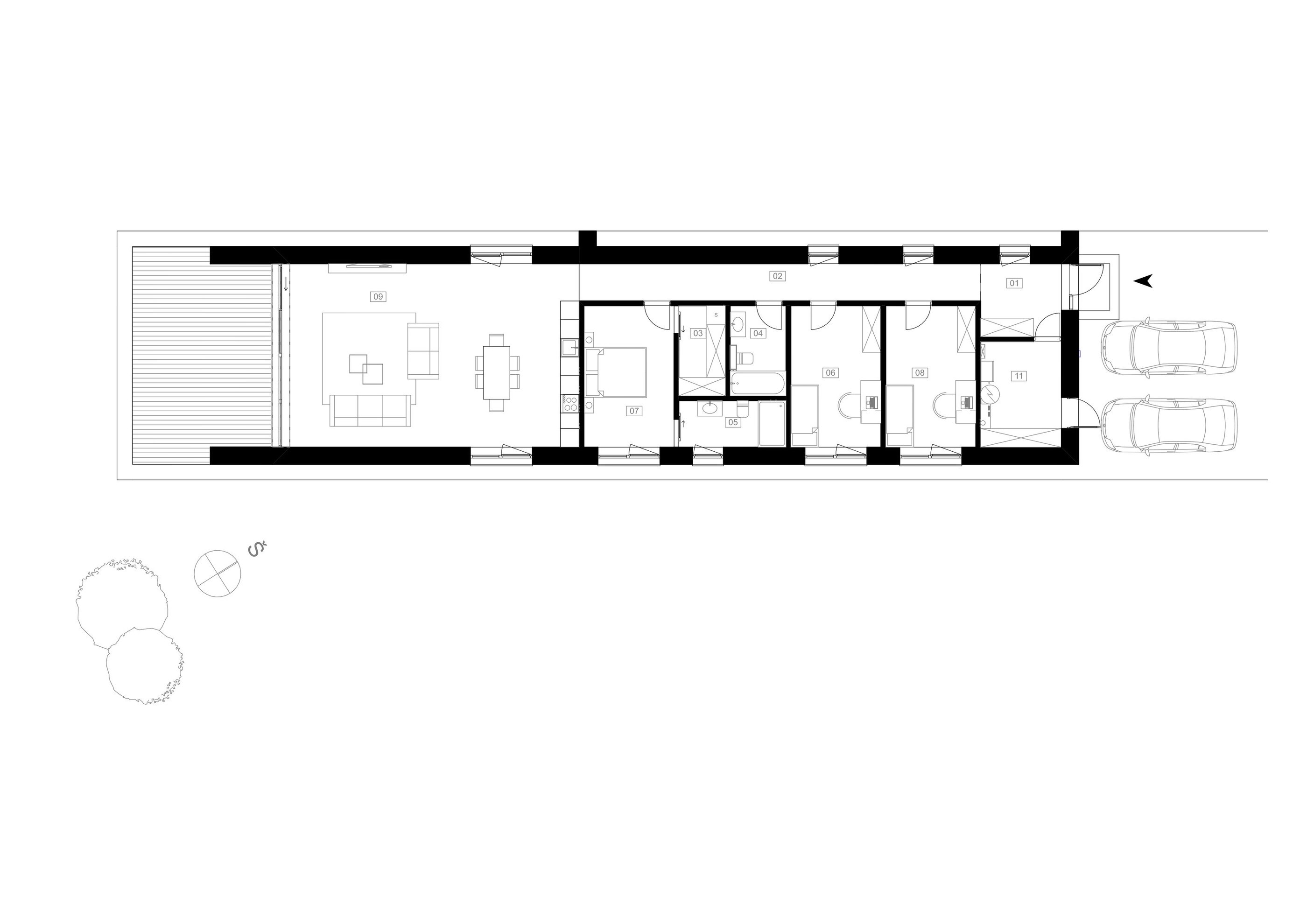
PIRMO AUKŠTO PLANAS
PIRMO AUKŠTO EKSPLIKACIJA
1. Tambūras 6,49 kv.m.
2. Koridorius 15,48 kv.m.
3. Drabužinė 4,35kv.m.
4. San. mazgas 5,22 kv.m.
5. San. mazgas 5,17 kv.m.
6. Kambarys 13,71 kv.m.
7. Miegamasis 13,71 kv. m.
8. Kambarys 13,71 kv.m.
9. Svetainė 57,43 kv.m.
10. Techninė patalpa 8,84 kv.m.
VISO 144,11 kv.m.
BENDRAS PLOTAS 144,11 kv.m.
TILTO "I" HAUS
TILTO "I" FORMOS NAMO ARCHITEKTŪRINIS PROJEKTAS
Metai: 2022 Vizualizacijos Plotas: 144,11 kv.m.
